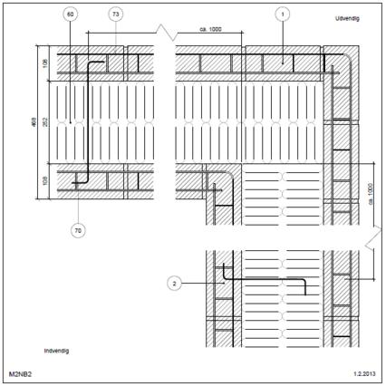
M2NB (*)
Bagmur: Tegl Denne tegning har U-værdier, som ikke anbefales i nybyggeri. Detaljen vises, fordi den angiver en teknisk løsning, som ikke findes på andre detaljer Hjørner (vandret snit) Vandret armeret murværk (simpelt) Normalsten Tegl i bagmur Hulmur, 348 mm
U-værdier U,l: 0.27
(*) Bemærk dårlige energidata for denne konstruktion