Bagmur: Monomur, porebeton Detalje vægtop/spærfod (lodret snit) Spærfod Porebeton U-værdier U,l: 0.27 kuldebro (1): 0.26
Bagmur: Tegl Brandsektionsvæg Indvendig Brandsektionsvæg, del af brandkamserstatning Tagfod/lodret skel (lodret snit) Tegl i bagmur
Bagmur: Tegl Brandcellevæg Tegl i bagmur Tagfod/lodret skel (lodret snit) Brandcellevægge/brandsektionsvæg Indvendig
Bagmur: Tegl lejl.skel Indvendig Lejlighedsskel Tagfod/lodret skel (lodret snit) Tegl i bagmur U-værdier U,v: 0.14
Bagmur: Tegl Forankr. for tværkræfter Indvendig Tagfod/lodret skel (lodret snit) Forankring for tværkræfter
Bagmur: Tegl Forskudte gavle, 25° Indvendig Forskudte gavle, 25° Tagfod/lodret skel (lodret snit) Tegl i bagmur Hulmur, 348 mm Undertag, banevare
(*) Bemærk dårlige energidata for denne konstruktion
Bagmur: Tegl Tegl i bagmur Tagfod/lodret skel (lodret snit) Forskudte gavle, 25° Indvendig Undertag, banevare Hulmur, 408 mm
Bagmur: Tegl Indvendig Forskudte gavle, 25° Tagfod/lodret skel (lodret snit) Tegl i bagmur Hulmur, 468 mm Undertag, banevare
Bagmur: Tegl Diff. åben plademat. Tegl i bagmur Tagfod/lodret skel (lodret snit) Forskudte gavle, 25° Indvendig Undertag, diff. åben plademateriale Hulmur, 348 mm
Bagmur: Tegl Forsk. gavle, 25°, snit A - A Indvendig Tagfod/lodret skel (lodret snit) Tegl i bagmur
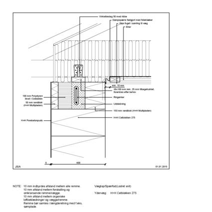
Bagmur: Porebeton Tagrum Porebeton Tagrum/lodret skel (lodret snit) Lejlighedsskel Brandsektionsvæg Del af brandkamserstatning U-værdier U,v: 0.14