Bagmur: Tegl Tilslutning (lodret snit) Afsl. m. tegltagsten Tegl i fritstående mur Afslutning med tegltagsten Murkrone
Bagmur: Tegl Afsl. m. tegltagst. trykf. isol. Tilslutning (lodret snit) Murkrone Afslutning med tegltagsten og trykfast isolering Tegl i fritstående mur
Bagmur: Tegl Afsl. m. betonelement Tilslutning (lodret snit) Murkrone Afslutning med betonelement Tegl i fritstående mur
Bagmur: Tegl Afsl. m. rulskft. og trykf. isol. Tilslutning (lodret snit) Murkrone Afslutning med rulskifte og trykfast isolering Tegl i fritstående mur
Bagmur: Tegl Tilslutning (lodret snit) Afsl. m. forms. nr. A12 Tegl i fritstående mur Afslutning med formsten nr. A12 Murkrone
Bagmur: Tegl Afsl. m. 45° rulskft. Tilslutning (lodret snit) Murkrone Afslutning med 45° rulskifte Tegl i fritstående mur
Bagmur: Tegl Tilslutning (lodret snit) Afsl. m. søjlest. (t = 65 mm) Tegl i fritstående mur Afslutning med søjlesten (t = 65 mm) Murkrone
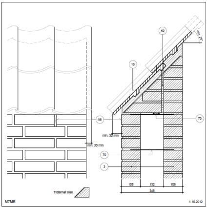
Bagmur: Tegl Differensbevægelse, type II Tilslutning (lodret snit) Tegl i fritstående mur Differensbevægelse, type II Murkrone Hulmur, 348 mm U-værdier U,l: 0.27 U,v: 0.14
(*) Bemærk dårlige energidata for denne konstruktion
Bagmur: Tegl Tilslutning (lodret snit) Faste bindere Murkrone Faste bindere Tegl i fritstående mur Efterspændt
Bagmur: Tegl Afsl. m. pap Tilslutning (lodret snit) Tegl i fritstående mur Faste bindere Murkrone Afslutning med pap
Bagmur: Tegl Tilslutning (lodret snit) Sokkel Murkrone Søjle Tegl i fritstående mur Sokkel
Bagmur: Tegl Afsl. m. pap Tilslutning (lodret snit) Tegl i fritstående mur Sokkel Murkrone Afslutning med pap