Bagmur: Leca Termblokke Søjle i ydermur, vandret snit Tilslutning (vandret snit) Leca blokke 100 mm Tilpasset isolering Stålsøjle HE100B Ydervæg: Leca Termblokke 390 mm U-værdier U,l: 0.2
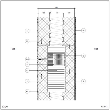
Bagmur: Tegl Stålsøjle I, snit A - A Tilslutning (lodret snit) Søjle Stålsøjle I, snit A - A Tegl i bagmur Hulmur, 348 mm
(*) Bemærk dårlige energidata for denne konstruktion
Bagmur: Tegl Tilslutning (lodret snit) Hulmur, 408 mm Tegl i bagmur Stålsøjle I, snit A – A Søjle Hulmur, 408 mm
Bagmur: Tegl Hulmur, 468 mm Tilslutning (lodret snit) Søjle Stålsøjle I, snit A – A Tegl i bagmur Hulmur, 468 mm
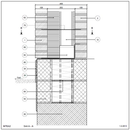
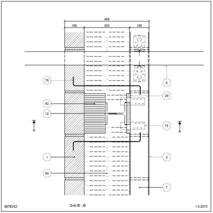
Bagmur: Tegl Stålsøjle I, snit B - B Tilslutning (lodret snit) Tegl i bagmur Stålsøjle I, snit B - B Søjle Hulmur, 348 mm U-værdier U,l: 0.27 kuldebro (1): 0.29
Bagmur: Tegl Hulmur, 408 mm Tilslutning (lodret snit) Søjle Stålsøjle I, snit B – B Tegl i bagmur Hulmur, 408 mm U-værdier U,l: 0.19 kuldebro (1): 0.22
Bagmur: Tegl Hulmur, 468 mm Tilslutning (lodret snit) Tegl i bagmur Stålsøjle I, snit B – B Søjle Hulmur, 468 mm U-værdier U,l: 0.14 kuldebro (1): 0.18
Bagmur: Tegl Tilslutning (lodret snit) Stålsøjle II, snit A – A Søjle Stålsøjle II, snit A – A Tegl i bagmur Hulmur, 348 mm
Bagmur: Tegl Stålsøjle II, snit B – B Tilslutning (lodret snit) Tegl i bagmur Stålsøjle II, snit B – B Søjle Hulmur, 348 mm U-værdier U,l: 0.27 kuldebro (1): 0.75
Bagmur: Tegl Tilslutning (lodret snit) Søjle Stålsøjle II, snit B – B Tegl i bagmur Hulmur, 408 mm U-værdier U,l: ikke oplyst kuldebro (1): ikke oplyst
Bagmur: Tegl Tilslutning (lodret snit) Tegl i bagmur Stålsøjle II, snit B – B Søjle Hulmur, 468 mm U-værdier U,l: ikke oplyst kuldebro (1): ikke oplyst
Bagmur: Tegl Tilslutning (lodret snit) Søjle Stålsøjle III, snit A – A Tegl i bagmur Hulmur, 348 mm
Bagmur: Tegl Tilslutning (lodret snit) Tegl i bagmur Stålsøjle III, snit B – B Søjle Hulmur, 348 mm U-værdier U,l: 0.27 kuldebro (1): 0.31
Bagmur: Tegl Tilslutning (lodret snit) Løsning ved top, snit A – A Søjle Løsning ved top, snit A – A Tegl i bagmur Hulmur, 348 mm
Bagmur: Tegl Tilslutning (lodret snit) Løsning ved top, snit A – A Søjle Tegl i bagmur Hulmur, 468 mm
Bagmur: Tegl Løsning ved top, snit B – B Tilslutning (lodret snit) Tegl i bagmur Løsning ved top, snit B – B Søjle Hulmur, 348 mm
Bagmur: Tegl Løsning ved top, snit B – B Tilslutning (lodret snit) Tegl i bagmur Søjle Hulmur, 468 mm