Bagmur: Letklinkerblokke Etageadskillelse (lodret snit) Letkl.dæk Kombinationsvæg, 340 mm Letklinkerdæk Rækkehus. Bærende kant Letklinkerblokke i bagmur U-værdier U,l: 0.25
(*) Bemærk dårlige energidata for denne konstruktion
Bagmur: Letklinkerblokke Etageadskillelse (lodret snit) Kombinationsvæg, 460 mm Letklinkerdæk Rækkehus. Bærende kant Letklinkerblokke i bagmur
Bagmur: Letklinkerblokke Træbjælkelag Etageadskillelse (lodret snit) Letklinkerblokke i bagmur Rækkehus. Bærende kant Træbjælkelag Kombinationsvæg, 340 mm U-værdier U,l: 0.25
Bagmur: Letklinkerblokke Etageadskillelse (lodret snit) Letklinkerblokke i bagmur Rækkehus. Bærende kant Træbjælkelag Kombinationsvæg, 460 mm
Bagmur: Monomur, porebeton Etageadskillelse Bærende kant Ydervæg Porebeton Etagedæk, vederlag (lodret snit) Dækelement - Ingen lydkrav U-værdier U,l: 0.27 kuldebro (1): 0.28
Bagmur: Monomur, porebeton Etageadskillelse Bærende kant Ydervæg H+H Celblokken 275 Etagedæk, vederlag (lodret snit) Dækelement - Ingen lydkrav U-værdier U,l: 0.20 kuldebro (1): 0.28
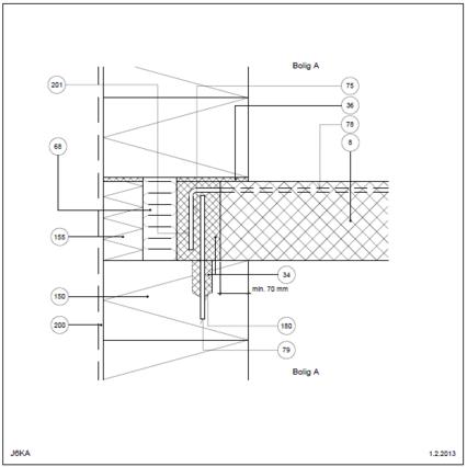
Bagmur: H+H Termoblokken Etageadskillelse Bærende kant Ydervæg H+H Termoblokken 400 mm Etagedæk, vederlag (lodret snit) Dækelement - Ingen lydkrav U-værdier U,l: 0.12 kuldebro (1): 0.16
Bagmur: Leca Termblokke Etageadskillelse (lodret snit) Rækkehus. Bærende kant Ydervæg: Leca Termblokke 390 mm Strøgulv U-værdier U,l: ikke oplyst
Bagmur: Tegl Træbjælkelag Etageadskillelse (lodret snit) Træbjælkelag Tegl i bagmur Rækkehus. Bærende kant Hulmur, 348 mm U-værdier U,l: 0.27
Bagmur: Tegl Etageadskillelse (lodret snit) Rækkehus. Bærende kant Tegl i bagmur Træbjælkelag Hulmur, 408 mm U-værdier U,l: ikke oplyst
Bagmur: Tegl Etageadskillelse (lodret snit) Træbjælkelag Tegl i bagmur Rækkehus. Bærende kant Hulmur, 468 mm U-værdier U,l: ikke oplyst
Bagmur: Teglblokke Træbjælkelag Teglblokke i bagmur Etageadskillelse (lodret snit) Rækkehus. Bærende kant Træbjælkelag Hulmur, 348 mm U-værdier U,l: 0.27
Bagmur: Højisolerende tegl Træbjælkelag Rækkehus. Bærende kant Træbjælkelag Etageadskillelse (lodret snit) Isolerende teglblokke i bagmur Kombinationsvæg, 355 mm U-værdier U,l: 0.24
Bagmur: Højisolerende tegl Isolerende teglblokke i bagmur Etageadskillelse (lodret snit) Træbjælkelag Rækkehus. Bærende kant Kombinationsvæg, 420 mm U-værdier U,l: ikke oplyst
Bagmur: Højisolerende tegl Rækkehus. Bærende kant Træbjælkelag Etageadskillelse (lodret snit) Isolerende teglblokke i bagmur Kombinationsvæg, 475 mm U-værdier U,l: ikke oplyst
Bagmur: Højisolerende tegl Isolerende teglblokke i bagmur Etageadskillelse (lodret snit) Træbjælkelag Rækkehus. Bærende kant Kombinationsvæg, 415 mm U-værdier U,l: ikke oplyst
Bagmur: Monomur, tegl Træbjælkelag Rækkehus. Bærende kant Træbjælkelag Etageadskillelse (lodret snit) Monomur Monomur, 365 mm, T10 U-værdier U,l: 0.27
Bagmur: Monomur, tegl Monomur Etageadskillelse (lodret snit) Træbjælkelag Rækkehus. Bærende kant Monomur, 425 mm, T12 U-værdier U,l: ikke oplyst