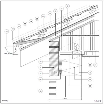
W8UA (*)
Bagmur: Monomur, tegl Tag m. udhæng, 25° g.spær Tagfod (lodret snit) Monomur Tag med udhæng, 25° gitterspær Udvendig. Gitter- og hanebåndsspær Monomur, 365 mm, T10 Undertag, banevare
U-værdier U,l: 0.27 U,v: 0.14
(*) Bemærk dårlige energidata for denne konstruktion