Bagmur: Letklinkerblokke Etageadskillelse (lodret snit) etageadsk., bær. lejl.skel Etageadskillelse, bærende lejlighedsskel Indvendig. Rækkehuse Letklinkerblokke
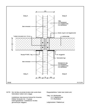
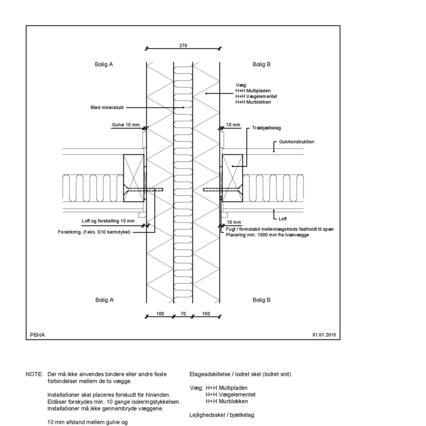
Bagmur: Porebeton Bjælkelag Etageadskillelse/lodret skel (lodret snit) Porebeton Lejlighedsskel Bjælkelag
Bagmur: Porebeton Rækkehus Rækkehus Lejlighedsskel Porebeton Etageadskillelse/lodret skel (lodret snit) Etageadskillelse Horisontalt lydkrav
Bagmur: Højisolerende tegl Letklinkerdæk Etageadskillelse/lodret skel (lodret snit) Isolerende teglblokke Letklinkerdæk, bærende kant Indvendig