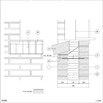
T4RB (*)
Bagmur: Højisolerende tegl Fremskudt vindue uden lysningspanel Vindue (lodret snit) Isolerende teglblokke i bagmur Fremskudt vindue uden lysningspanel Rulskiftesålbænk Kombinationsvæg, 415 mm
U-værdier U,l: 0.22 U,v: 0.28 kuldebro (1): 0.28
(*) Bemærk dårlige energidata for denne konstruktion