Bagmur: Tegl Altanplade og vindue Tilslutning (lodret snit) Tegl i bagmur Samling ved dæk (fri), bagmur, altanplade og vindue Altan U-værdier U,l: 0.26 kuldebro (1): 0.28 kuldebro (2): 0.94
(*) Bemærk dårlige energidata for denne konstruktion
Bagmur: Tegl Altanplade og vindue Tilslutning (lodret snit) Tegl i bagmur Samling ved dæk (fri), bagmur, altanplade og vindue Altan U-værdier U,l: ikke oplyst kuldebro (1): ikke oplyst kuldebro (2): ikke oplyst
Bagmur: Tegl Tilslutning (lodret snit) Dæk, bagmur og altanplade Altan Samling ved dæk (fri), bagmur og altanplade Tegl i bagmur U-værdier U,l: 0.26 kuldebro (1): 0.28
Bagmur: Tegl Tilslutning (lodret snit) Dæk, bagmur og altanplade Altan Samling ved dæk (fri), bagmur og altanplade Tegl i bagmur U-værdier U,l: ikke oplyst kuldebro (1): ikke oplyst
Bagmur: Tegl Tilslutning (lodret snit) Tegl i bagmur Samling ved dæk (fri), bagmur Altan Altanplade/rigel U-værdier U,l: 0.26 kuldebro (1): 0.28
Bagmur: Tegl Tilslutning (lodret snit) Tegl i bagmur Samling ved dæk (fri), bagmur Altan Altanplade/rigel U-værdier U,l: ikke oplyst kuldebro (1): ikke oplyst
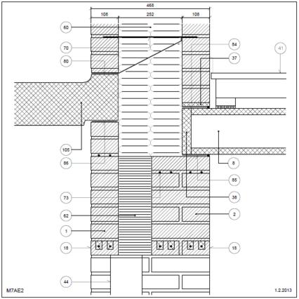
Bagmur: Tegl Tilslutning (lodret snit) Altan Samling ved dæk (bærende), altanplade Tegl i bagmur Teglbjælke U-værdier U,l: 0.27 kuldebro (1): 0.28 kuldebro (2): 0.97
Bagmur: Tegl Tilslutning (lodret snit) Altan Samling ved dæk (bærende), altanplade Tegl i bagmur Teglbjælke U-værdier U,l: ikke oplyst kuldebro (1): ikke oplyst kuldebro (2): ikke oplyst
Bagmur: Tegl Dæk (fri), altanplade Tegl i bagmur Tilslutning (lodret snit) Samling ved dæk (fri), altanplade og betonbjælke Altan U-værdier U,l: 0.19 kuldebro (1): 0.26 kuldebro (2): 0.72