Bagmur: Letklinkerblokke Etageadskillelse (lodret snit) Komb.væg, 340 mm Letklinkerblokke i bagmur Kombinationsvæg, 340 mm Letklinkerdæk Etagehus. Bærende kant U-værdier U,l: 0.25
(*) Bemærk dårlige energidata for denne konstruktion
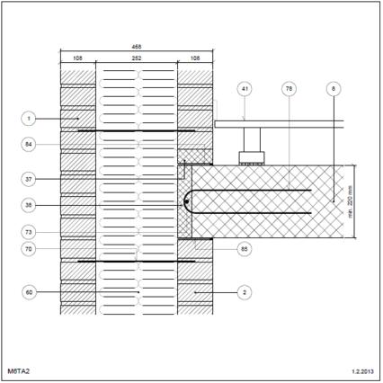
Bagmur: Letklinkerblokke Etageadskillelse (lodret snit) Letklinkerblokke i bagmur Kombinationsvæg, 460 mm Letklinkerdæk Etagehus. Bærende kant
Bagmur: Tegl Letkl.dæk Etageadskillelse (lodret snit) Letklinkerdæk Tegl i bagmur Etagehus. Bærende kant Hulmur, 348 mm U-værdier U,l: 0.27
Bagmur: Tegl Etageadskillelse (lodret snit) Etagehus. Bærende kant Tegl i bagmur Letklinkerdæk Hulmur, 408 mm U-værdier U,l: 0.19
Bagmur: Tegl Etageadskillelse (lodret snit) Letklinkerdæk Tegl i bagmur Etagehus. Bærende kant Hulmur, 468 mm U-værdier U,l: 0.14
Bagmur: Tegl Etageadskillelse (lodret snit) Betondæk. Bagmur, 168 mm Etagehus. Bærende kant Tegl i bagmur Betondæk. Bagmur, 168 mm Hulmur, 348 mm U-værdier U,l: 0.26
Bagmur: Tegl Etageadskillelse (lodret snit) Forankring af let tag Tegl i bagmur Etagehus. Bærende kant Bredstens mur over etageadskillelse Hulmur, 408 mm U-værdier U,l: ikke oplyst
Bagmur: Tegl Etageadskillelse (lodret snit) ½-stens mur etageadsk. Etagehus. Bærende kant Tegl i bagmur Forankring af let tag Hulmur, 348 mm ½-stens mur over etageadskillelse U-værdier U,l: 0.27
Bagmur: Teglblokke Letkl.dæk Etagehus. Bærende kant Letklinkerdæk Etageadskillelse (lodret snit) Teglblokke i bagmur Hulmur, 348 mm U-værdier U,l: 0.27
Bagmur: Teglblokke Teglblokke i bagmur Etageadskillelse (lodret snit) Letklinkerdæk Etagehus. Bærende kant Hulmur, 408 mm U-værdier U,l: ikke oplyst
Bagmur: Teglblokke Etagehus. Bærende kant Letklinkerdæk Etageadskillelse (lodret snit) Teglblokke i bagmur Hulmur, 468 mm U-værdier U,l: ikke oplyst
Bagmur: Højisolerende tegl Letklinkerdæk Isolerende teglblokke i bagmur Etageadskillelse (lodret snit) Rækkehus. Bærende kant Letklinkerdæk Kombinationsvæg, 355 mm U-værdier U,l: 0.24
Bagmur: Højisolerende tegl Letklinkerdæk Rækkehus. Bærende kant Etageadskillelse (lodret snit) Isolerende teglblokke i bagmur Kombinationsvæg, 420 mm U-værdier U,l: 0.18
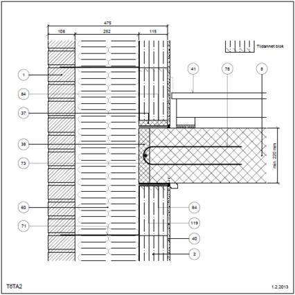
Bagmur: Højisolerende tegl Isolerende teglblokke i bagmur Etageadskillelse (lodret snit) Rækkehus. Bærende kant Letklinkerdæk Kombinationsvæg, 475 mm U-værdier U,l: ikke oplyst
Bagmur: Højisolerende tegl Letklinkerdæk Letklinkerdæk Rækkehus. Bærende kant Etageadskillelse (lodret snit) Isolerende teglblokke i bagmur Kombinationsvæg, 415 mm U-værdier U,l: 0.22
Bagmur: Højisolerende tegl Letklinkerdæk Rækkehus. Bærende kant Etageadskillelse (lodret snit) Isolerende teglblokke i bagmur Kombinationsvæg, 415 mm
Bagmur: Monomur, tegl Letklinkerdæk Monomur Etageadskillelse (lodret snit) Rækkehus. Bærende kant Letklinkerdæk Monomur, 365 mm, T10 U-værdier U,l: 0.27
Bagmur: Monomur, tegl Letklinkerdæk Rækkehus. Bærende kant Etageadskillelse (lodret snit) Monomur Monomur, 425 mm, T12 U-værdier U,l: ikke oplyst