Bagmur: Letklinkerblokke Komb.væg, 340 mm Gavl (lodret snit) Udvendig Kombinationsvæg, 340 mm Forskudte gavle, 25°
(*) Bemærk dårlige energidata for denne konstruktion
Bagmur: Letklinkerblokke Gavl (lodret snit) Udvendig Kombinationsvæg, 460 mm Forskudte gavle, 25°
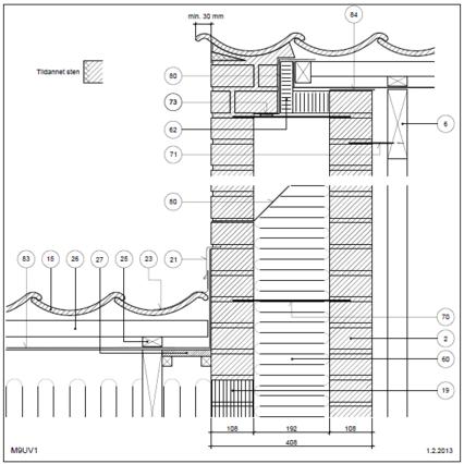
Bagmur: Tegl Forskudte gavle, 45° Udvendig Gavl (lodret snit) Hulmur, 348 mm Forskudte gavle, 45°
Bagmur: Tegl Forskudte gavle, 45° Hulmur, 408 mm Gavl (lodret snit) Udvendig
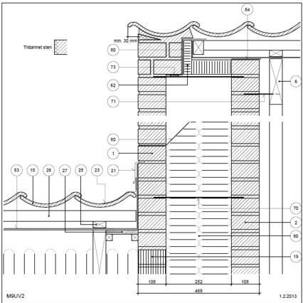
Bagmur: Tegl Udvendig Gavl (lodret snit) Hulmur, 468 mm Forskudte gavle, 45°