Bagmur: Tegl Tag m. udhæng, 25° g.spær Tag med udhæng, 25° gitterspær Hulmur, 348 mm Gavl (lodret snit) Udvendig U-værdier U,l: 0.27 U,v: 0.14
(*) Bemærk dårlige energidata for denne konstruktion
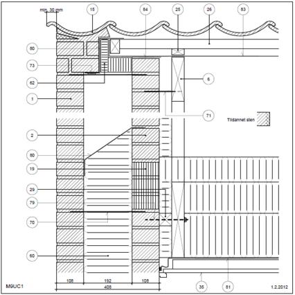
Bagmur: Tegl Udvendig Gavl (lodret snit) Hulmur, 408 mm Tag med udhæng, 25° gitterspær
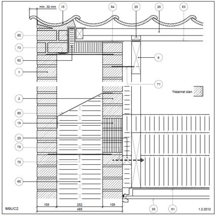
Bagmur: Tegl Tag med udhæng, 25° gitterspær Hulmur, 468 mm Gavl (lodret snit) Udvendig
Bagmur: Tegl Udhæng, gesims, 25° g.spær Tag med udhæng, gesims, 25° gitterspær Hulmur, 348 mm Gavl (lodret snit) Udvendig U-værdier U,l: 0.27 U,v: 0.14
Bagmur: Tegl Udvendig Gavl (lodret snit) Hulmur, 408 mm Tag med udhæng, gesims, 25° gitterspær
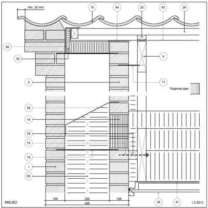
Bagmur: Tegl Tag med udhæng, gesims, 25° gitterspær Hulmur, 468 mm Gavl (lodret snit) Udvendig
Bagmur: Tegl Udhæng, gesims, 45° g.spær Tag med udhæng, gesims, 45° gitterspær Hulmur, 348 mm Gavl (lodret snit) Udvendig U-værdier U,l: 0.27 U,v: 0.14
Bagmur: Tegl Hulmur, 408 mm Udvendig Gavl (lodret snit) Hulmur, 408 mm Tag med udhæng, gesims, 45° gitterspær U-værdier U,l: 0.19 U,v: 0.14
Bagmur: Tegl Hulmur, 468 mm Tag med udhæng, gesims, 45° gitterspær Hulmur, 468 mm Gavl (lodret snit) Udvendig U-værdier U,l: 0.14 U,v: 0.14
Bagmur: Højisolerende tegl Gavl u. udhæng, 25° g.spær Isolerende teglblokke i bagmur Gavl (lodret snit) Tag uden udhæng, 25° gitterspær Udvendig Kombinationsvæg, 355 mm U-værdier U,l: 0.24 U,v: 0.14
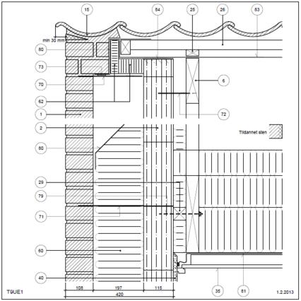
Bagmur: Højisolerende tegl Udvendig Tag uden udhæng, 25° gitterspær Gavl (lodret snit) Isolerende teglblokke i bagmur Kombinationsvæg, 420 mm