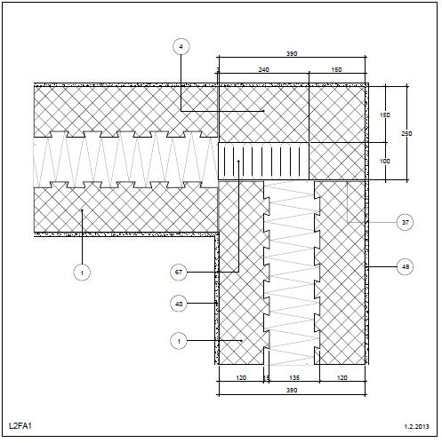
Bagmur: Leca Termblokke Hjørneløsning med Leca flexhjørne Hjørne med specialsten, ydermur Ydervæg: Leca Termblokke 390 mm U-værdier U,l: 0.2
Bagmur: Leca Termblokke Hjørneløsning med tilskåret blok Hjørne med tilpasning, ydermur Ydervæg: Leca Termblokke 390 mm U-værdier U,l: 0.2