M8UQ (*)
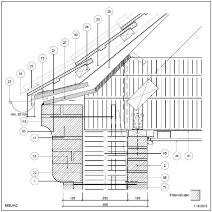
Bagmur: Tegl Tagfod, gesims. Gitter- og hanebåndsspær Gesims + opskalk, 45º hanebåndsspær Udvending. Gitter- og hanebåndsspær Tegl i bagmur Tagfod (lodret snit) Hulmur, 348 mm Tagfodselement, lagt på mørtelpude og opklodsning
U-værdier U,l: 0.27 U,v: 0.14
(*) Bemærk dårlige energidata for denne konstruktion