B9UC (*)
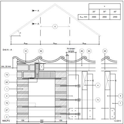
Bagmur: Letklinkerblokke Gavl (lodret snit) Snit vink. på gavltr., skrå tag Forankring af ½-stens gavltrekant Snit vinkelret på gavltrekant, skrå tag Kombinationsvæg, 340 mm Udvendig
U-værdier U,l: 0.25 U,v: 0.14
(*) Bemærk dårlige energidata for denne konstruktion