Bagmur: Letklinkerblokke Lodret skel (opstalt) Enkeltvægge, letkl.dæk I bygning Enkeltvægge, letklinkerdæk, bærende kant Letklinkerblokke
Bagmur: Monomur, porebeton Skillevæg Lodret skillevæg/tilslutning ydervæg Tilslutning til ydervæg med H+H studsfugeanker Skillevæg Porebeton Ydervæg
Bagmur: Leca Termblokke Lodret skel. Indvendig. Ydervæg: Leca Termblokke 390 mm Samling ydervæg/skillevæg U-værdier U,l: 0.2
Bagmur: Tegl ½-stens væg på efterg. dæk Lodret skel (opstalt) Tegl i skillevæg I bygning ½-stens væg på eftergiveligt dæk (1:50/1:5)
Bagmur: Tegl Lodret skel (opstalt) sk.væg Skillevæg I bygning Tegl i skillevæg Hulmur, 348 mm U-værdier U,l: 0.27
(*) Bemærk dårlige energidata for denne konstruktion
Bagmur: Tegl Hulmur, 408 mm Lodret skel (opstalt) Tegl i skillevæg I bygning Skillevæg Hulmur, 408 mm U-værdier U,l: 0.19
Bagmur: Tegl Lodret skel (opstalt) Hulmur, 468 mm Skillevæg I bygning Tegl i skillevæg Hulmur, 468 mm U-værdier U,l: 0.14
Bagmur: Porebeton Indvendig skillevæg Spærfod/skillevæg (lodret snit) Porebeton Indvendig skillevæg
Bagmur: Porebeton Ny væg Lodret skillevæg/tilslutning Porebeton Ny væg Eksisterende væg Med lydkrav Tilslutnig til eksisterende væg med vinkelbeslag
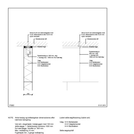
Bagmur: Porebeton Loft Skillevægstop Loft Porebeton Lodret skillevæg/tilslutning Tilslutning til eksisterende loft med H+H fjederbeslag
Bagmur: Porebeton Loft med stor nedbøjning Skillevægstop/tag eller etagedæk (lodret snit) Porebeton Loft med stor nedbøjning Indvendig skillevæg
Bagmur: Porebeton Etageadskillelse ved ikke bærende skillevæg Indvendig etagehus Etageadskillelse ved ikke bærende skillevæg Porebeton Detalje ved etagedæk/skillevægs fod (lodret snit)