Bagmur: H+H Termoblokken Tilslutning (lodret snit) Elementdæk Murkrone/Tagfod (fladt tag) Ydervæg, H+H termoblokken 400 mm Murkrone, H+H Celblokken 360 mm
Bagmur: H+H Termoblokken Tilslutning (lodret snit) Elementdæk Murkrone/Tagfod (fladt tag) Ydervæg, H+H termoblokken 460 mm Murkrone, H+H Celblokken 360 mm
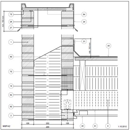
Bagmur: Tegl Tilslutning (lodret snit) Træbjælkelag Tagfod (fladt tag) Tegl i bagmur Hulmur, 468 mm
Bagmur: Tegl Tilslutning (lodret snit) Træbjælkelag Tagfod (fladt tag) Tegl i bagmur Hulmur, 408 mm