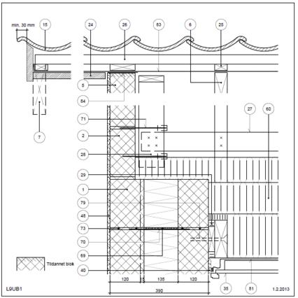
Bagmur: Letklinkerblokke Tag m. udhæng, 25° Gavl (lodret snit) Tag med udhæng, 25° Kombinationsvæg, 340 mm Udvendig U-værdier U,l: 0.25 U,v: 0.14
(*) Bemærk dårlige energidata for denne konstruktion
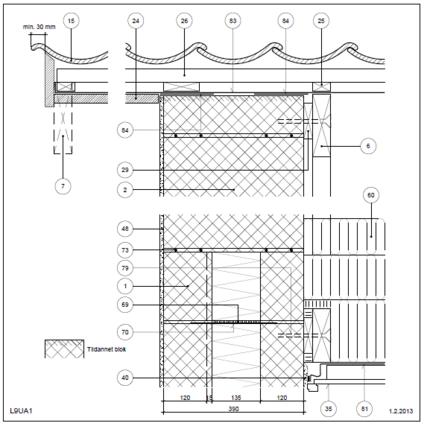
Bagmur: Letklinkerblokke Tag m. udhæng, 25° Gavl (lodret snit) Gavl forankret til spær Kombinationsvæg, 460 mm Udvendig U-værdier U,l: ikke oplyst U,v: ikke oplyst
Bagmur: Letklinkerblokke Tag m. udhæng, 45° Gavl (lodret snit) Udvendig Kombinationsvæg, 340 mm Tag med udhæng, 45° U-værdier U,l: 0.25 U,v: 0.14
Bagmur: Letklinkerblokke Tag m. udhæng, 45° Gavl (lodret snit) Udvendig Kombinationsvæg, 460 mm U-værdier U,l: ikke oplyst U,v: ikke oplyst
Bagmur: Leca Termblokke Udvendig. Gitter- og hanebåndsspær Tag med udhæng, 25º gitterspær Gavl (lodret snti) Ydervæg: Leca Termblokke 390 mm
Bagmur: Leca Termblokke Gavl, tag med udhæng. Ingen isolering i gavltrekant. Ydervæg: Leca Termblokke 390 mm Gavl (lodret snti) Tag med udhæng, 25º gitterspær Udvendig. Gitter- og hanebåndsspær
Bagmur: Tegl Tag m. udhæng, 25° Tag med udhæng, 25° Hulmur, 348 mm Gavl (lodret snit) Udvendig U-værdier U,l: 0.27 U,v: 0.14
Bagmur: Tegl Udvendig Gavl (lodret snit) Hulmur, 408 mm Tag med udhæng, 25°
Bagmur: Tegl Tag med udhæng, 25° Hulmur, 468 mm Gavl (lodret snit) Udvendig
Bagmur: Tegl Tag m. udhæng, 45° Udvendig Gavl (lodret snit) Hulmur, 348 mm Tag med udhæng, 45° U-værdier U,l: 0.27 U,v: 0.14
Bagmur: Tegl Tag med udhæng, 45° Hulmur, 408 mm Gavl (lodret snit) Udvendig
Bagmur: Tegl Udvendig Gavl (lodret snit) Hulmur, 468 mm Tag med udhæng, 45°
Bagmur: Porebeton Udhæng Porebeton Gavl (lodret snit) Udhæng Gavltrekant Uden bagmur i tagrum U-værdier U,l: 0.24 U,v: 0.14
Bagmur: Porebeton Udhæng Gavltrekant Udhæng Gavl (lodret snit) Porebeton Uden bagmur i tagrum U-værdier U,l: 0.21 U,v: 0.14
Bagmur: Porebeton Porebeton Gavl (lodret snit) Udhæng Gavltrekant Uden bagmur i tagrum
Bagmur: Porebeton Udhæng Gavltrekant Udhæng Gavl (lodret snit) Porebeton Bagmur i gavltrekant Tag med udhæng U-værdier U,l: 0.24 U,v: 0.14
Bagmur: Porebeton Udhæng Porebeton Gavl (lodret snit) Udhæng Gavltrekant Tag med udhæng Bagmur i gavltrekant U-værdier U,l: 0.21 U,v: 0.14
Bagmur: Porebeton Gavltrekant Udhæng Gavl (lodret snit) Porebeton Bagmur i gavltrekant Tag med udhæng
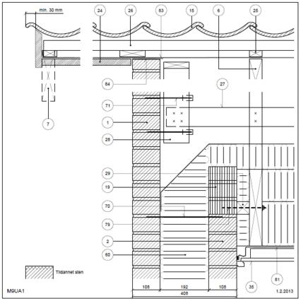
Bagmur: Højisolerende tegl Gavl m. udhæng, 25° g.spær Isolerende teglblokke i bagmur Gavl (lodret snit) Tag med udhæng, 25° Udvendig Kombinationsvæg, 355 mm U-værdier U,l: 0.24 U,v: 0.14
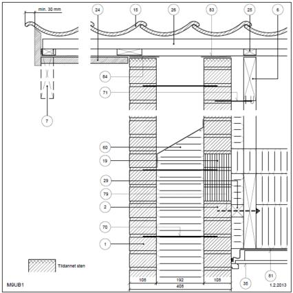
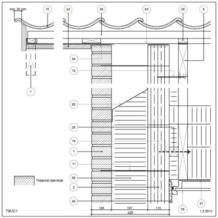
Bagmur: Højisolerende tegl Udvendig Tag med udhæng, 25° Gavl (lodret snit) Isolerende teglblokke i bagmur Kombinationsvæg, 420 mm
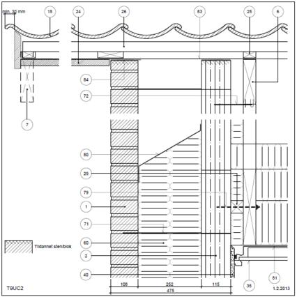
Bagmur: Højisolerende tegl Isolerende teglblokke i bagmur Gavl (lodret snit) Tag med udhæng, 25° Udvendig Kombinationsvæg, 475 mm
Bagmur: Højisolerende tegl Gavl m. udhæng, 45° g.spær Isolerende teglblokke i bagmur Gavl (lodret snit) Tag med udhæng, 45° Udvendig Kombinationsvæg, 355 mm U-værdier U,l: 0.24 U,v: 0.14
Bagmur: Højisolerende tegl Udvendig Tag med udhæng, 45° Gavl (lodret snit) Isolerende teglblokke i bagmur Kombinationsvæg, 420 mm
Bagmur: Højisolerende tegl Isolerende teglblokke i bagmur Gavl (lodret snit) Tag med udhæng, 45° Udvendig Kombinationsvæg, 475 mm