Bagmur: Letklinkerblokke Letkl.blokke Tilslutning (lodret snit) Letklinkerblokke i bagmur Ved top Efterspændt murværk
(*) Bemærk dårlige energidata for denne konstruktion
Bagmur: Letklinkerblokke Tilslutning (lodret snit) Letklinkerblokke i bagmur Ved top Efterspændt murværk
Bagmur: Letklinkerblokke Tilslutning (lodret snit) Efterspændt murværk Ved bund Letklinkerblokke i bagmur
Bagmur: Tegl Ved top Tilslutning (lodret snit) Tegl i bagmur Efterspændt murværk
Bagmur: Tegl Tilslutning (lodret snit) Ved bund Efterspændt murværk Tegl i bagmur
Bagmur: Tegl Skjult topbeslag, snit A – A Tilslutning (lodret snit) Tegl i bagmur Efterspændt murværk U-værdier U,l: 0.27 kuldebro (1): 2.94
Bagmur: Tegl Skjult topbeslag, snit A – A Tilslutning (lodret snit) Tegl i bagmur Efterspændt murværk U-værdier U,l: ikke oplyst kuldebro (1): ikke oplyst
Bagmur: Tegl Tilslutning (lodret snit) Skjult topbeslag, snit B - B Efterspændt murværk Tegl i bagmur U-værdier U,l: 0.27 kuldebro (1): 2.94
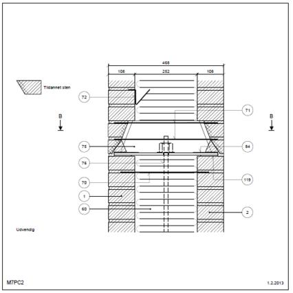
Bagmur: Tegl Tilslutning (lodret snit) Skjult topbeslag, snit B - B Efterspændt murværk Tegl i bagmur U-værdier U,l: ikke oplyst kuldebro (1): ikke oplyst
Bagmur: Tegl Skjult topbeslag, snit C - C Tilslutning (lodret snit) Tegl i bagmur Efterspændt murværk