M7SB (*)
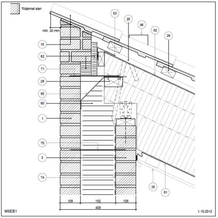
Bagmur: Tegl Tilslutning (lodret snit) Tag m. ensidigt fald, 25° Skråt tag Tag med ensidigt fald, 25°, varmt tagrum Tegl i bagmur Hulmur, 348 mm Undertag, diff. åben plademateriale
U-værdier U,l: 0.27 U,v: 0.15
(*) Bemærk dårlige energidata for denne konstruktion