Bagmur: Letklinkerblokke Træbjælkelag (bær. kant) Tilslutning (lodret snit) Fladt tag Træbjælkelag (bærende kant) Mod ydervæg Letklinkerblokke i bagmur Kombinationsvæg, 340 mm U-værdier U,l: 0.25 U,v: 0.14
(*) Bemærk dårlige energidata for denne konstruktion
Bagmur: Letklinkerblokke Træbjælkelag (fri kant) Tilslutning (lodret snit) Letklinkerblokke i bagmur Mod ydervæg Træbjælkelag (fri kant) Fladt tag Kombinationsvæg, 340 mm U-værdier U,l: 0.25 U,v: 0.14
Bagmur: Tegl Træbjælkelag (bær. kant) Tilslutning (lodret snit) Tegl i bagmur Mod ydervæg Fladt tag Træbjælkelag (bærende kant) Hulmur, 348 mm U-værdier U,l: 0.27 U,v: 0.14
Bagmur: Tegl Hulmur, 408 mm Tilslutning (lodret snit) Fladt tag Mod ydervæg Tegl i bagmur Hulmur, 408 mm Træbjælkelag (bærende kant) U-værdier U,l: 0.19 U,v: 0.14
Bagmur: Tegl Hulmur, 468 mm Tilslutning (lodret snit) Tegl i bagmur Mod ydervæg Fladt tag Træbjælkelag (bærende kant) Hulmur, 468 mm U-værdier U,l: 0.14 U,v: 0.14
Bagmur: Tegl Træbjælkelag (fri kant) Tilslutning (lodret snit) Fladt tag Mod ydervæg Tegl i bagmur Hulmur, 348 mm Træbjælkelag (fri kant) U-værdier U,l: 0.27 U,v: 0.14
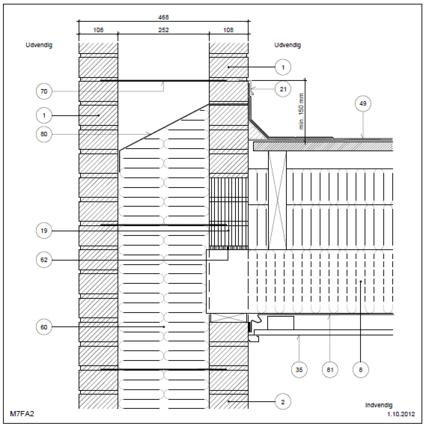
Bagmur: Tegl Hulmur, 408 mm Tilslutning (lodret snit) Tegl i bagmur Mod ydervæg Fladt tag Træbjælkelag (fri kant) Hulmur, 408 mm U-værdier U,l: 0.19 U,v: 0.14
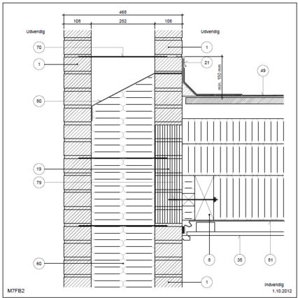
Bagmur: Tegl Hulmur, 468 mm Tilslutning (lodret snit) Fladt tag Mod ydervæg Tegl i bagmur Hulmur, 468 mm Træbjælkelag (fri kant) U-værdier U,l: 0.14 U,v: 0.14
Bagmur: Tegl Træbjælkelag (bær. kant) Tilslutning (lodret snit) Tegl i bagmur Mod ydervæg/indervæg Fladt tag Træbjælkelag (bærende kant) Hulmur, 348 mm U-værdier U,l: 0.27 U,v: 0.14
Bagmur: Tegl Hulmur, 408 mm Tilslutning (lodret snit) Fladt tag Mod ydervæg/indervæg Tegl i bagmur Hulmur, 408 mm Træbjælkelag (bærende kant) U-værdier U,l: 0.19 U,v: 0.14
Bagmur: Tegl Hulmur, 468 mm Tilslutning (lodret snit) Tegl i bagmur Mod ydervæg/indervæg Fladt tag Træbjælkelag (bærende kant) Hulmur, 468 mm U-værdier U,l: 0.14 U,v: 0.14
Bagmur: Teglblokke Træbjælkelag (bær. kant) Teglblokke i bagmur Tilslutning (lodret snit) Mod ydervæg Fladt tag Træbjælkelag (bærende kant) Hulmur, 348 mm U-værdier U,l: 0.27 U,v: 0.14
Bagmur: Teglblokke Hulmur, 408 mm Fladt tag Mod ydervæg Tilslutning (lodret snit) Teglblokke i bagmur Hulmur, 408 mm Træbjælkelag (bærende kant) U-værdier U,l: 0.19 U,v: 0.14
Bagmur: Teglblokke Hulmur, 468 mm Teglblokke i bagmur Tilslutning (lodret snit) Mod ydervæg Fladt tag Træbjælkelag (bærende kant) Hulmur, 468 mm U-værdier U,l: 0.14 U,v: 0.14
Bagmur: Teglblokke Træbjælkelag (fri kant) Fladt tag Mod ydervæg Tilslutning (lodret snit) Teglblokke i bagmur Hulmur, 348 mm Træbjælkelag (fri kant) U-værdier U,l: 0.27 U,v: 0.14
Bagmur: Teglblokke Hulmur, 408 mm Teglblokke i bagmur Tilslutning (lodret snit) Mod ydervæg Fladt tag Træbjælkelag (fri kant) Hulmur, 408 mm U-værdier U,l: 0.19 U,v: 0.14
Bagmur: Teglblokke Hulmur, 468 mm Fladt tag Mod ydervæg Tilslutning (lodret snit) Teglblokke i bagmur Hulmur, 468 mm Træbjælkelag (fri kant) U-værdier U,l: 0.14 U,v: 0.14
Bagmur: Teglblokke Træbjælkelag (bær. kant) Teglblokke i bagmur Tilslutning (lodret snit) Mod ydervæg/indervæg Fladt tag Træbjælkelag (bærende kant) Hulmur, 348 mm U-værdier U,l: 0.27 U,v: 0.14
Bagmur: Teglblokke Hulmur, 408 mm Fladt tag Mod ydervæg/indervæg Tilslutning (lodret snit) Teglblokke i bagmur Hulmur, 408 mm Træbjælkelag (bærende kant) U-værdier U,l: 0.19 U,v: 0.14
Bagmur: Teglblokke Hulmur, 468 mm Teglblokke i bagmur Tilslutning (lodret snit) Mod ydervæg/indervæg Fladt tag Træbjælkelag (bærende kant) Hulmur, 468 mm U-værdier U,l: 0.14 U,v: 0.14