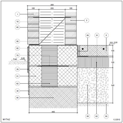
W1TA (*)
Bagmur: Monomur, tegl Letklinkerblokke, 350 mm Monomur Sokkel (lodret snit) Term-blokke. Letklinkerblokke, 350 mm Blokke/tynd gulvbelægning Trykfast isolering, 50 mm. Monomur, 365 mm, T10 Letklinker, 170 mm
U-værdier U,l: 0.27 U,v: 0.2 kuldebro (1): 0.15
(*) Bemærk dårlige energidata for denne konstruktion